産品特點:
該産品的特點,能在無電、無氣的場所工作,同時又節約了能源,壓力設定值在運行中可随意調整。采用快開流量特征,動作靈敏、密封性能好,因而它廣泛應用于石油、化工、電力、冶金、食品、輕紡、機械制造與居民建築樓群等各種工業設備中用氣體、液體及蒸汽介質減壓、穩壓(用于閥後調節),或洩壓、穩壓(用于閥前調節)的自動控制
産品應用:該産品的特點,能在無電、無氣的場所工作,同時又節約了能源,壓力設定值在運行中可随意調整。采用快開流量特征,動作靈敏、密封性能好,因而它廣泛應用于石油、化工、電力、冶金、食品、輕紡、機械制造與居民建築樓群等各種工業設備中用氣體、液體及蒸汽介質減壓、穩壓(用于閥後調節),或洩壓、穩壓(用于閥前調節)的自動控制
.jpg)
一、概述
ZZY型自力式壓力調節閥是不需要任何外加能源,利用被調介質自身能量而實現自動調節的執行器産品。
該産品的特點,能在無電、無氣的場所工作,同時又節約了能源,壓力設定值在運行中可随意調整。采用快開流量特征,動作靈敏、密封性能好,因而它廣泛應用于石油、化工、電力、冶金、食品、輕紡、機械制造與居民建築樓群等各種工業設備中用氣體、液體及蒸汽介質減壓、穩壓(用于閥後調節),或洩壓、穩壓(用于閥前調節)的自動控制。
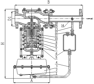
三、結構與作用原理
1、 進液接頭
2、 排氣塞
3、 檢測執行機構
4、 進液管
5、 壓蓋螺釘
6、 冷凝器
7、 彈簧
8、 閥杆
9、 閥芯
10、 波紋管
11、 壓力調節盤
12、 注液口螺釘
13、 取壓管
14、 閥後接管
15、 閥座
16、 閥體
圖一a、ZZYP-16B自力式壓力調節閥
調壓閥主要有檢測執行機構、調壓閥、冷凝器與閥後接管等腰三角形四部分組成,其結構(見圖一)。
圖一b:用于控制閥前壓力的調壓閥,閥的作用方式爲壓開型。其原理如下:介質由箭頭方向流入閥體,另一路經冷凝器(介質爲蒸汽時使用)冷卻後,被引入執行機構作用于膜片上,使閥芯随之發生相應的位移,達到洩壓、穩壓之目的。如閥前壓力增加,作用于膜片上的力增加,壓縮彈簧,帶動調芯,使閥門開啓度增大,直到閥前壓力下降到設定值爲止。同理,如閥門開啓度減小,直到閥前壓力上升到設定值爲止。
1、進液接頭
2、排氣管
3、檢測行機構
4、進液管
5、壓蓋螺杆
6、冷凝器
7、彈簧
8、閥杆
9、閥芯
10、波紋管
11、壓力調節盤
12、注液口螺釘
13、取壓管
14、閥前接管
15、閥座
16、閥體
圖一b、ZZYP-16K型自力式壓力調節閥
四、主要技術參數和性能指标、材料
1、主要技術參數和性能指标
|
公稱通徑DN(mm) |
20 |
25 |
32 |
40 |
50 |
65 |
80 |
100 |
125 |
150 |
200 |
250 |
300 |
|
|
額定流量系數(KV) |
7 |
11 |
20 |
30 |
48 |
75 |
120 |
190 |
300 |
480 |
760 |
1100 |
1750 |
|
|
額定行程(mm) |
8 |
10 |
14 |
20 |
25 |
40 |
50 |
60 |
70 |
|||||
|
公稱壓力PN(MPa) |
1.6、4.0、6.4 |
|||||||||||||
|
壓力調節範圍(Kpa) |
15~50、 40~80、 60~100、 80~140、 120~180、 160~220、200~260、 240~300、 280~350、 330~400、 380~450、 430~500、480~560、 540~620、 600~700、 680~800、 780~900、 880~1000、600~1500、 1000~2500 |
|||||||||||||
|
流量特性 |
快開 |
|||||||||||||
|
調節精度(%) |
±5 |
|||||||||||||
|
使用溫度(℃) |
≤350 |
|||||||||||||
|
允許 洩漏量 |
硬密封(l/h) |
單座:≤10-4 閥額定容量(Ⅳ 級);雙座、套筒≤5×10-3 閥額定容量(Ⅱ級) |
||||||||||||
|
軟密封(ml/h) |
0.15 |
0.30 |
0.45 |
0.60 |
0.90 |
1.7 |
4.0 |
6.75 |
11.10 |
11.60 |
||||
|
減壓比 |
zui大 |
10 |
||||||||||||
|
zui小 |
1.25 |
|||||||||||||
2、壓力調節範圍确定
壓力調節範圍分段,見主要參數及性能指标表,控制壓力應盡量選取在調節範圍的中間值附近(見表一)。
壓力調節範圍(以薄膜式執行機構爲例,1000~2500KPa視具體工況要求決定)
|
壓力調節範圍(KPa) |
壓力分段範圍(KPa) |
膜室有效面積(cm2) |
使用閥門口徑(mm) |
|
15~140 |
40~80 |
280 |
20~25 |
|
60~140 |
|||
|
15~50 |
400 |
32~300 |
|
|
40~80 |
|||
|
60~140 |
|||
|
120~300 |
120~300 |
70 |
20~50 |
|
100 |
65~100 |
||
|
280 |
125~300 |
||
|
280~500 |
280~500 |
200 |
20300 |
|
480~1000 |
480~1000 |
70 |
20~50 |
|
100 |
65~100 |
||
|
280 |
125~300 |
3、閥後壓力調節閥,其閥前壓力與閥後壓力的關系
自力式調節閥本身是一個調節系統,閥本身又有一定的壓降要求,對閥後壓力調節閥(B型),爲保證閥後壓力在一定範圍内,其閥前壓力須達到一定值,其要求可參見下表:
|
閥前壓力 |
閥後壓力 |
閥前壓力 |
閥後壓力 |
閥前壓力 |
閥後壓力 |
閥前壓力 |
閥後壓力 |
|
30 |
15~24 |
350 |
35~280 |
700 |
70~560 |
1250 |
125~1000 |
|
50 |
15~40 |
400 |
40~320 |
750 |
75~600 |
1500 |
150~1200 |
|
100 |
15~80 |
450 |
45~360 |
800 |
2000 |
200~1600 |
|
|
150 |
15~120 |
500 |
50~400 |
850 |
85~680 |
2500 |
250~2000 |
|
200 |
20~160 |
550 |
55~440 |
900 |
90~720 |
3000 |
300~2400 |
|
250 |
25~200 |
600 |
60~480 |
950 |
95~760 |
|
|
|
300 |
30~240 |
650 |
65~520 |
1000 |
100~800 |
|
|
外形尺寸圖
4、外形尺寸與重量 單位:mm
|
公稱通徑DN |
20 |
25 |
32 |
40 |
50 |
65 |
80 |
100 |
125 |
150 |
200 |
250 |
300 |
||
|
法蘭接管尺寸B |
383 |
512 |
603 |
862 |
1023 |
1380 |
1800 |
2000 |
2200 |
||||||
|
法蘭端面距L |
150 |
160 |
180 |
200 |
230 |
290 |
310 |
350 |
400 |
480 |
600 |
730 |
850 |
||
|
壓力調節範圍KPa |
15-140 |
H |
475 |
520 |
540 |
710 |
780 |
840 |
880 |
915 |
940 |
1000 |
|||
|
A |
280 |
308 |
|||||||||||||
|
130-300 |
H |
455 |
500 |
520 |
690 |
760 |
800 |
870 |
880 |
900 |
950 |
||||
|
A |
230 |
||||||||||||||
|
280-500 |
H |
450 |
490 |
510 |
680 |
750 |
790 |
860 |
870 |
890 |
940 |
||||
|
A |
176 |
194 |
280 |
||||||||||||
|
480-1000 |
H |
445 |
480 |
670 |
740 |
780 |
850 |
860 |
880 |
930 |
|||||
|
A |
176 |
194 |
280 |
||||||||||||
|
600-1500 |
H |
445 |
570 |
600 |
820 |
890 |
950 |
1000 |
1100 |
1200 |
|||||
|
A |
85 |
96 |
|||||||||||||
|
1000-2500 |
H |
445 |
570 |
600 |
820 |
890 |
950 |
1000 |
1100 |
1200 |
|||||
|
A |
85 |
96 |
|||||||||||||
|
重量Kg |
26 |
37 |
42 |
72 |
90 |
114 |
130 |
144 |
180 |
200 |
250 |
||||
|
導壓管接頭螺紋 |
×1.5 |
||||||||||||||
5、主要零件材料
|
零件名稱 |
材料 |
|
閥 體 |
ZG230-450、ZG1Cr18Ni9Ti、ZGCr18Ni12Mo2Ti |
|
閥 芯 |
1Cr18Ni9Ti、Cr18Ni12Mo2Ti |
|
閥 座 |
1Cr18Ni9Ti、Cr18Ni12Mo2Ti |
|
閥 杆 |
1Cr18Ni9Ti、Cr18Ni12Mo2Ti |
|
橡膠膜片 |
丁晴、乙炳、氟、耐油橡膠 |
|
膜 蓋 |
、A4鋼塗四氟乙烯 |
|
填 料 |
聚四氟乙烯、柔性石墨 |
閥結構形式:波紋管平衡型
雙閥芯平衡型
執行機構:
閥體工作溫度與允許壓力:
五、安裝、使用與維護
ZZY自力式壓力調節閥安裝方法
1、過濾器 2、自力式調節閥 3、導壓管Φ12×2 4、冷凝器
安裝方式說明
P1:調節氣體,閥前壓力調節(K型),過濾器(1)可以不安裝
P2:調節氣體,閥後壓力調節(B型),過濾器(1)可以不安裝
P3:調節液體,閥前壓力調節(K型),對于非清潔流體,應裝過濾器(1)
P4:調節液體,閥後壓力調節(B型),對于非清潔流體,應裝過濾器(1)
P5:調節蒸氣,閥前壓力調節(K型),應裝冷凝器(4),建議裝過濾器(1)
P6:調節蒸氣,閥後壓力調節(B型),應裝冷凝器(4),建議裝過濾器(1)
注意:安裝時取壓點離開調壓閥适當的距離,控制閥前壓力應大于2倍管道直徑,控制閥後壓力應大于6倍管道直徑。安裝冷凝器時應注意冷凝器的位置,使其高于膜頭而低于工藝管道,以保證冷凝器内充滿冷凝液。
六、安裝時,注意以下幾點:
1、安裝
(1) 冷凝器須高于調壓閥的執行機構而低于閥後(閥後調壓閥)或閥前(閥前調壓閥)接管,以保證冷凝器内充滿冷凝液。
(2) 取壓點應取在離調壓閥适當的位置,閥前調壓閥應大于2倍管道直徑,閥後調壓閥應大于6倍管道直徑。
(3) 爲便于現場維修及操作,調壓閥四周應留有适當空間,閥前後應設置截止閥與旁路手動閥,如圖五所示。
圖五 調壓閥閥組安裝方案
注:圖中虛線表示管道出入口的另一種允許方向
(4) 調壓閥口徑過大(DN≥100時),應有固定支架。
(5) 介質流動方向與閥體上箭頭指向一緻,前後管道中心應對準調壓閥兩法蘭中心,避免閥體受過大的應力。
(6) 閥前應設置過濾器以防止介質中雜質堵塞。
(7) 調節閥應安裝在環境溫度不超過-25℃~55℃的場合。
2、使用
在常溫下使用氣體或低粘度液體場合時的操作程序:(參見圖三)
(1) 緩慢開啓閥前後截止閥。
(2) 擰松排氣塞,直至氣體或液體從執行機構溢出爲止。
(3) 然後重新擰緊排氣塞,調壓閥即可工作。所需壓力值的大小可通過壓力調節盤的調整而獲得,調整時,注意觀察壓力表示值,動作應緩慢,不得使閥杆跟着轉
動。使用蒸汽場合時的操作程序:(參見圖四)
(1) 從冷凝器上擰下注液口螺釘。
(2) 擰桦執行機構排氣塞。
(3) 使用漏頭通過注液口加水直至排汽孔流出爲止。
(4) 擰緊排氣塞,繼續注水直至溢出注液口。
(5) 擰緊注液口螺釘。
(6) 緩慢開啓調壓閥前後截止閥。
(7) 調整壓力調節盤,并觀察壓力表示值達到要求爲止。
3、維修
調節閥投入運行後,一般維護工作量很小,平時隻要觀察閥前、閥後壓力示值是否符合工藝所需值要求即可。另外,觀察填料函與執行機構是否滲漏,若滲漏應擰緊或更換填料及膜片。調壓閥常見故障排除方法(見表五)
表五
|
故障現象 |
産生原因 |
排除方法 |
|
閥後壓力不穩定随着 閥前壓力變動而變動 |
2、閥杆、推杆卡住 3、進液管道堵塞 |
1、重新拆裝排除異物 2、重新調整 3、疏通 |
|
閥後壓力降不下來,始 終在需求值上方變動 |
1、設定彈簧剛度太大 2、閥口徑過大 3、閥前壓力過高、減壓比過大 |
1、更換彈簧 2、更換較小口徑 3、閥前壓:閥後壓超過10:1應2級降壓 |
|
閥後壓力升不上去,始 終在需求值下方變動 |
1、設定彈簧剛度太小 2、閥口徑過小 3、減壓比過小 |
1、更換彈簧 2、更換圈套口徑 3、閥前壓:閥後壓低于1.25應提高閥前壓 |
|
閥前壓力升不上去,始 終在需求值下方動作 |
1、設定彈簧鋼度太小 2、閥芯被異物卡住 3、閥杆、推杆卡住 4、閥芯、閥座損壞、洩漏量過大 5、閥口徑太大 |
1、更換彈簧 2、重新拆裝 3、重新調整 4、重新研磨或更換 5、更換較小口徑 |
|
閥前壓力降不下去,始 終在需求值上方動作 |
1、設定彈簧剛度太大 2、口徑太小 3、閥芯、閥杆、推杆等卡死 |
1、更換彈簧 2、更換較大口徑 3、排除卡死原因,重新調整 |
|
閥後壓或閥前壓 波動過于頻繁 |
1、閥口徑過大 2、執行機構膜室容量太小 |
1、選擇恰當的閥口徑 2、在進液管道内增設阻尼器 |
訂貨時請用戶提供以下資料:
|
型号 |
名稱 |
|
公稱壓力 |
|
|
信号範圍 |
作用方式 |
|
介質參數 |
介質工作溫度 |
|
額定流量系數 |
固有流量特性 |
|
閥前zui大壓力、閥前zui小壓力、閥前正常壓力 |
閥後zui大壓力、閥後zui小壓力、閥後正常壓力 |
|
zui大流量、zui小流量、正常流量 |
液體粘度、液體重度、氣體重度 |
|
材質:閥芯、閥體、内閥件、填料 |
附件 |
|
工藝管道尺寸 |
耐蝕等特殊要求 |
|
自力式調壓範圍、調溫範圍、壓差調節範圍、微壓調節範圍 |
|
型号編制